| 活塞頭 |
|
 |
|
| 件號60463至60466的油缸使用淬火鋼活塞頭. |
|
|
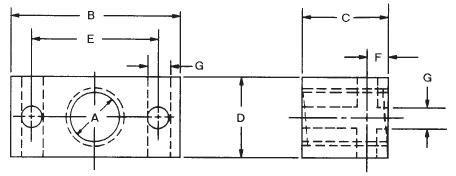
螺紋油缸
安裝支架

|
 |
件號 |
A(英制) |
B |
C |
D |
E |
F |
G |
重量
(kg) |
60950 |
1/2-20 |
34.9 |
19.1 |
15.9 |
23.8 |
6.4 |
6.4 |
0.06 |
60951 |
3/4-16 |
41.3 |
28.6 |
25.4 |
28.6 |
6.4 |
6.4 |
0.15 |
60959 |
7/8-14 |
50.8 |
19.1 |
38.1 |
38.1 |
9.5 |
8.3 |
0.18 |
60956 |
1 5/16-16 |
76.2 |
31.8 |
46.0 |
54.0 |
11.1 |
9.9 |
0.58 |
60957 |
1 9/16-16 |
82.6 |
38.1 |
50.8 |
61.9 |
11.1 |
9.9 |
0.88 |
60958 |
1 7/8-16 |
101.6 |
50.8 |
60.3 |
76.2 |
12.7 |
13.1 |
— |
|
公制 |
60997 |
M36 x 1.5 6H |
82.6 |
38.1 |
50.8 |
62 |
12 |
10.8 |
0.86 |
| 60998 |
M48 x 1.5 6H |
101.6 |
38.1 |
60.3 |
76 |
12 |
12 |
1.13 |
|
|
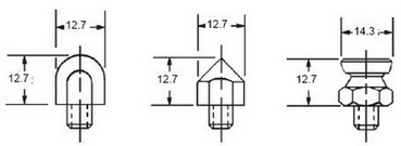
法蘭式安裝架

|
 |
件號 |
A(英制) |
B |
C |
D |
E |
重量
(kg) |
60952 |
1 5/16-16 |
41.3 |
12.7 |
31.8 |
6.7 |
0.08 |
60955 |
1 9/16-16 |
50.8 |
25.4 |
38.1 |
6.7 |
0.25 |
60954 |
1 7/8-16 |
57.2 |
25.4 |
44.5 |
8.3 |
0.28 |
| 公制 |
60997 |
M36 x 1.5 6H |
50.8 |
25.4 |
38.0 |
6.7 |
0.30 |
60998 |
M48 x 1.5 6H |
63.5 |
25.4 |
50.0 |
8.8 |
0.42 |
|
|
鎖緊螺母

|
件號 |
60961 |
60962 |
60963 |
60964 |
60965 |
60966 |
60967 |
螺紋(英制) |
1/2-20 |
3/4-16 |
7/8-14 |
1-12 |
1 5/16-16 |
1 9/16-16 |
1 7/8-16 |
厚度(mm) |
7.9 |
9.5 |
7.9 |
13.9 |
9.9 |
9.9 |
11.1 |
對邊寬度(mm) |
19.1 |
28.6 |
33.3 |
41.3 |
47.6 |
57.2 |
76.2 |
|