| |
|
| |
|
| |
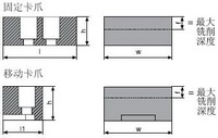
5 軸固定卡爪臺虎鉗 - 卡爪 |
| |
|
| |
 |
階梯型卡爪,可翻轉 |
件號
固定卡爪 |
件號
移動卡爪 |
尺寸(mm) |
夾緊范圍
最小/最大(mm) |
| 適用型號 |
l |
l1 |
w |
h |
a* |
f |
j |
| 80310 |
80315 |
40 |
40 |
34 |
40 |
15 |
12 |
3 |
3 |
6-70 |
| 80410 |
80415 |
60 |
65 |
35 |
60 |
23 |
18 |
3 |
5 |
6-106 |
l1 僅存在于移動卡爪 |
|
| |
|
| |
 |
Block Jaw, 軟爪,用于銑削工件外輪廓 |
件號
固定卡爪 |
件號
移動卡爪 |
尺寸(mm) |
| 適用型號 |
l |
l1 |
w |
h |
f |
| 80420 |
80425 |
60 |
65 |
35 |
60 |
25 |
11 |
|
|
| |
|
| |
5 軸固定卡爪臺虎鉗 - 附件 |
| |
 |
定位銷,多種直徑,用于柵格板
每組2件 |
| 件號 |
適用型號 |
Ø(mm) |
| 80060 |
60 |
10/12 |
|
|
 |
定位銷,多種直徑,用于T槽工作臺
每組2件 |
| 件號 |
適用型號 |
Ø(mm) |
| 80065 |
60 |
10/14 |
|
|
|
| |
|
| |
| 扭力扳手 |
接頭 |
套筒扳手 |
| 件號 |
適用型號 |
扭矩(Nm) |
| 80070 |
40/60 |
5-60 |
|
| 件號 |
適用型號 |
SW |
| 80380 |
40 |
6 |
| 80430 |
60 |
8 |
|
|
|
| |
|
| |
夾持爪
每組4件,包括螺絲 |
|
|
| 件號 |
適用型號 |
螺紋 |
| 80050 |
60 |
M10 |
| 80053 |
60 |
M12 |
|
|
|
|
| |
|
| |
|
| |
|